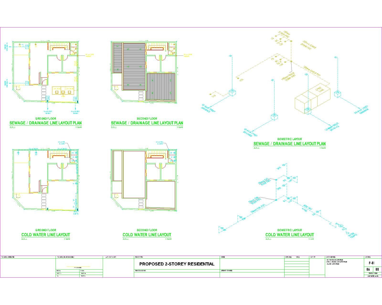
Plumbing Plans Layout
1
+
Team members
1
+
Winning awards
1
+
Completed Project
1
+
Happy Clients
Call for help!
About us
